Skip to content
Sale Models
Search Floor Plans
Model Centers
Get Pricing
Log in
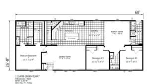
Champion Woodward 68 Floor Plan