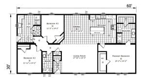
Timberlake Floorplan