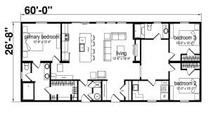
Little Sky Floorplan