Little Sky
Floor Plan: Little Sky
Home Style: Ranch
Square Feet: 1600
Bedrooms: 3
Bathrooms: 2
Foundation Type: Crawl Space or Basement
Number:
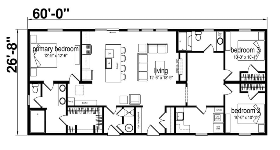
The Little Sky is a thoughtfully designed 1,600 square foot single-story home offering 3 bedrooms and 2 full bathrooms, created to maximize comfort, functionality, and everyday living.
The open-concept layout connects the kitchen, dining, and living areas into one spacious central gathering space, ideal for both daily life and entertaining. The kitchen features a large island, and generous cabinet storage, making it as practical as it is inviting.
The primary bedroom suite is privately located and includes a full bathroom and ample closet space, providing a quiet retreat from the main living areas. Two additional bedrooms and a second full bathroom are positioned on the opposite side of the home, offering flexibility for family, guests, or a home office.
With efficient use of space, modern construction standards, and a layout designed for real-life living, the Little Sky plan delivers comfort, convenience, and long-term value in a home that feels just right.
Love This Home?
Just visit the Get Pricing form and request current base pricing. Make sure to put the name of the floor plan in the comment section.
Options and standards are subject to change without notice. Because prices are to build and can change periodically as our manufacturer’s pricing changes, we don’t publicly post pricing. If you wish to receive current base pricing, please fill out the form on our Get Pricing tab or contact a model center directly.
Take an Online Tour
Floor Plan
Image Gallery
Photos on this page may contain optional features that may or may not be available from D&W Homes. Some photos may include AI-generated design concepts for visualization purposes.
Specifications & Features
Interior Finish
8' Flat Ceilings
Stomp Textured Ceilings
Drywall Throughout Smooth Finish With Tinted Primer
Finished Ceiling Joints T/O - except closets
16 oz Plush Carpet
5 Lb Rebond Carpet Pad
Tack Strip Carpet Installation
Entry Foyer at Front Door
Linoleum in Wet Areas Kitchen, Baths, Utility, Morning Room, Nook - VBP
High Pressure Laminate Countertops
Self Edge Laminate Countertops
Ceramic Backsplash Throughout
Flat Panel Hardwood Cabinet Doors & Stiles
Brushed Nickel Cabinet Door Handles
Concealed Cabinet Door Hinges
Stained Ash Hardwood Trim Throughout
Ash Shoebase Hardwood Trim
Wood Window Sill in Living Areas
Wood Tone 6 Panel Int Doors to Match Cabs
Residential Interior Door Height
3 Hinges on All Interior Doors
Mortised Hinges - Brushed Nickel
Utility Room Door (VBP)
Finished Closets T/O
White Coated Wire Shelving in Closets
White Coated Wire Washer/Dryer Shelf
Switched Closet Lights (Walk-In Closets)
Platinum Dining Room Chandelier
Full Length Drape w/Decorative Rod Living Room, Family Room & Dining Room
Valance In Kitchen, Master Bed & Master Bath
2" Mini-Blinds T/O
R-13 Fiberglass Insulation in Floors
Kitchen
Black 30" Standard Electric Range
Black 30" Power Vented Lighted Range Hood
Black 18 CF Over/Under Refrigerator
Can Lights
Stainless Steel Kitchen Sink
Single Lever Metal Faucet w/Pull Out Sprayer
Maple Cabinet Interiors
1/2" Cabinet Side Panels
Grooved End Panels
3/4" Adjustable Shelving
Center Shelves in Kitchen Base Cabinets
Bottom Shelves in Kitchen Base Cabinets
Bank of Drawers
Drawers Over Doors
Corner Overhead Cab - VBP
Cove Overhead Top Cabinet Moulding
Adjustable Center Shelf in O/H Cabinets
Back Panel at O/H Cabinets
Cabinet Over Refrigerator
30" O/H Cabinets
Staggered O/H Cabs At Range & Refer
Island - VBP
Bathrooms
60" One Piece Fiberglass Tub/Shower
Fiberglass Deck Tub or Corner Tub At Master Bath - VBP
48" Or 60" Shower At Master Bath With Pivot Shower Door - VBP
China Commode(s) w/Elongated Bowl
China Vanity Sinks
36" Bathroom Vanity w/Bank of Drawers - VBP
Master Bath Dbl Sink Furniture Style Vanity - VBP
Single Lever Faucets
2" Hardwood Trimmed Vanity Mirrors
Platinum Vanity Lights
Lighted Power Exhaust Fan - Soffit Vented
Structural
2" x 10" Floor Joists 16" O.C.
Returnable Modular Carrier
2 X 6 Exterior Sidewalls 16" on Center
Rafter Load Designed To Meet Or Exceed Local Code
2 x 4 24" O.C. Interior Walls
R-19 Sidewall Insulation
R-40 Roof Insulation
5/8" OSB T&G Floor Decking
Water Resistant Underlayment
Windows & Exterior Doors
36" x 80" 6-Panel Front Door w/Storm
36" x 80" Fire Rated Door
Dead Bolt Locks on Exterior Doors
Residential Pinned Door Hinges
6/6 Grid Pattern Vinyl Windows
30" x 36" Kitchen Window
Exterior
8' Sidewalls
OSB Wrap
Weather Wrap
5/12 Roof Pitch
30 Year Architectural Shingles
Aluminum Facia / Vinyl Soffit
Vented Eaves All Around
Double 4 Dutch Lap Vinyl Siding
Window Lineals on Front Door Side
Black Lantern Exterior Light All Exterior Doors
Heating, Plumbing, & Electrical
Electric Furnace
Furnace Door
Cold Air Returns in Ceiling
Kit & Baths Toekick Baseboard Registers
Perimeter Drop-In Floor Registers w/Boots
Fiberglass Heat Ducts Shipped Loose
200 Amp Electrical Service With 30/40 Panel
Residential Electrical Switches
Smoke Alarms w/Battery Backup
Dual Control Thermostat
Residential Panel Box
2 Exterior GFI Receptacles
12-2 Copper Wiring
Heat Tape Receptacle
GFI Recept in Bathrooms & Kitchen
TV/Ph Jack In Kit
40 Gallon Electric Water Heater
Water Heater Door (VBP)
Brass Plumbing Fittings
Pex Water Lines
Schedule 40 PVC Drain & Vent Lines
Wire and Vent for Dryer
Plumb for Washer
Water Shut Offs Throughout
Exterior Frost Free Faucet
Additional Standards
7 Year Dutch Guard Warranty
Love This Home?
Just visit the Get Pricing form and request current base pricing. Make sure to put the name of the floor plan in the comment section.
Options and standards are subject to change without notice. Because prices are to build and can change periodically as our manufacturer’s pricing changes, we don’t publicly post pricing. If you wish to receive current base pricing, please fill out the form on our Get Pricing tab or contact a model center directly.